Instalacja centralnego ogrzewania: projekt i wymagania
Projekt instalacji centralnego ogrzewania to więcej niż listwa grzejników i skrzynka z kotłem — to decyzja, która wpływa na komfort, rachunki i przyszłe remonty. Dylematy są trzy: precyzyjne wymiarowanie mocy kontra pokusa „bezpiecznego nadmiaru”, wybór źródła energii — tradycyjnego czy z odnawialnych źródeł — oraz kompromis między kosztami projektu a oszczędnościami eksploatacyjnymi. W tym tekście przeczytasz, jak te wątki rozwiązać krok po kroku, jakie elementy powinny znaleźć się w dokumentacji i jakie realne liczby stoją za typowym projektem domu jednorodzinnego o powierzchni 150 m2.

- Wymogi prawne i normy dla projektów CO
- Dobór mocy i parametryzacja instalacji
- Rysunki i zestawienie elementów w projekcie
- Dobór materiałów: rury, grzejniki, pompy, zawory
- Sterowniki, automatyka i okablowanie w projekcie
- Koszty, instalacja i korzyści długoterminowe
- Instalacja centralnego ogrzewania projekt — Pytania i odpowiedzi
Poniżej przedstawiam syntezę danych użytych w przykładzie projektu oraz szacunkowy kosztorys, ułożone w formie tabeli, która ułatwia porównanie kluczowych wielkości technicznych i wydatków.
| Parametr | Wartość (przykład: dom 150 m²) | Jednostka | Szacunkowy koszt (PLN) |
|---|---|---|---|
| Powierzchnia ogrzewana | 150 | m² | — |
| Zapotrzebowanie cieplne (obliczeniowe) | 9,0 | kW | — |
| Kocioł kondensacyjny (dobór) | 12 | kW | 11 000 |
| Liczba grzejników | 12 szt. (średnio 800 W) | szt. | 4 500 |
| Rury PEX 20 mm (główne) | 60 | m | 540 |
| Rury PEX 16 mm (rozdział) | 120 | m | 720 |
| Pompa obiegowa (modulacyjna) | 0,4 m³/h, Hdo 6 m | szt. | 1 600 |
| Zbiornik przeponowy | 18 | L | 380 |
| Armatura, zawory, rozdzielacz, akcesoria | — | — | 4 000 |
| Robocizna i montaż (szac.) | — | — | 8 000 |
| Suma orientacyjna | — | — | 31 240 |
Ta tabela pokazuje priorytety projektowe: moc kotła nie powinna być jedynie „na oko”, a suma mocy grzejników ma odpowiadać zapotrzebowaniu 9 kW z zapasem 10–20% na warunki ekstremalne, co w przykładzie przekłada się na dobranie kotła 12 kW, zbiornika 18 l i pompy o przepływie ≈0,4 m³/h. Koszty materiałów i elementów montażowych są rozłożone między kocioł (najdroższy pojedynczy element), grzejniki i osprzęt instalacji; znaczącą część budżetu pochłania robocizna i kompletacja armatury, co warto uwzględnić już na etapie projektu.
Wymogi prawne i normy dla projektów CO
Projekt instalacji centralnego ogrzewania musi odnosić się do obowiązujących wymogów budowlanych i norm technicznych, które w Polsce obejmują wymagania z zakresu warunków technicznych (WT) oraz normy obliczeń cieplnych (m.in. PN‑EN 12831 dla obliczeń zapotrzebowania cieplnego). Z dokumentu projektowego powinno wynikać, że budynek spełnia wymagania U (współczynnik przenikania ciepła) oraz EP (pierwotne zapotrzebowanie na energię), a sam projekt instalacji uwzględnia parametry pracy źródła ciepła i urządzeń. W praktyce projektant musi również uwzględnić przepisy dotyczące bezpieczeństwa urządzeń spalających paliwa gazowe lub stałe, wymagania wentylacyjne, a także wytyczne producentów urządzeń co do montażu i przejścia serwisowego.
Zobacz: Projekt instalacji centralnego ogrzewania z pompą ciepła
Przy sporządzaniu projektu instalacji warto od razu planować dokumentację potrzebną do odbiorów technicznych: schematy hydrauliczne, rysunki kondygnacji z oznaczonymi punktami pomiarowymi, zestawienia materiałów i dokumentację obliczeniową. Niektóre gminy lub warunki pozwolenia na budowę mogą wymagać dodatkowych załączników, na przykład oświadczenia o spełnieniu wymagań WT lub deklaracji zgodności urządzeń. Projekt powinien być tak przygotowany, by instalator miał precyzyjne wytyczne montażowe: miejsca montażu, typy połączeń, wymagane spadki przewodów i punkty odpowietrzenia oraz odwodnienia.
Odpowiedzialność za projekt i wykonanie spoczywa na osobach o odpowiednich uprawnieniach: projektant powinien znać stosowane normy i przepisy, a wykonawca — mieć potwierdzone kwalifikacje do montażu i uruchomienia instalacji. Z tego powodu w dokumentacji projektu muszą znaleźć się dane dotyczące parametrów technicznych systemu, zabezpieczeń (np. zawory bezpieczeństwa), wymagań eksploatacyjnych oraz instrukcji obsługi, tak by inspekcje i odbiory mogły potwierdzić zgodność instalacji z prawem i normami.
Dobór mocy i parametryzacja instalacji
Dobór mocy to moment, w którym najłatwiej „zrobić błąd”, który potem kosztuje — zbyt duży kocioł będzie kręcił się na niskich mocach, powodując kondensację i niższą sprawność; zbyt mały nie zapewni komfortu. Obliczeniowe zapotrzebowanie cieplne liczy się według PN‑EN 12831 dla każdej strefy/grzejnika, sumuje i uwzględnia rezerwę 10–20% dla ekstremalnych dni; w naszym przykładzie daje to 9 kW obliczeniowych i kocioł 12 kW jako typowy wybór. Parametryzacja instalacji to ustalenie temperatury zasilania i powrotu (dla grzejników zwykle 75/55°C w tradycyjnych systemach, lub niższe 55/45°C przy urządzeniach kondensacyjnych i niskotemperaturowych grzejnikach), ustawień pomp i krzywych pogodowych sterownika, które razem definiują charakterystyki pracy systemu.
Zobacz także: Instalacja centralnego ogrzewania koszt
Proces doboru mocy można rozbić na kroki, które warto zapisać w projekcie:
- obliczenie strat ciepła dla każdej strefy (PN‑EN 12831);
- dobór mocy grzejnika dla pomieszczeń i ich rozkład w rzucie;
- sumowanie mocy i dodanie rezerwy oraz wybór źródła ciepła z uwzględnieniem sezonowej sprawności;
- wyliczenie przepływów i strat ciśnienia, dobór średnic przewodów i pompy obiegowej zgodnie z wykresami producenta;
- parametryzacja sterowania: krzywa grzewcza, ograniczniki temperatury i algorytmy anty‑legionella dla CWU.
W parametryzacji kluczowa jest zgodność założeń hydraulicznych z rzeczywistością: przyjęcie wartości ΔT (20°C lub 10–15°C w instalacjach niskotemperaturowych) przekłada się bezpośrednio na przepływy i średnice rur, a więc na wybór pompy i strat ciśnienia. Zapas mocy (10–20%) ma uzasadnienie przy ekstremalnych warunkach, ale nie powinien tłumaczyć całkowitego przewymiarowania kotła czy grzejników; projekt instalacji musi dokumentować uzasadnienie każdego zwiększenia mocy, by uniknąć nieefektywnej pracy i wyższych kosztów eksploatacji.
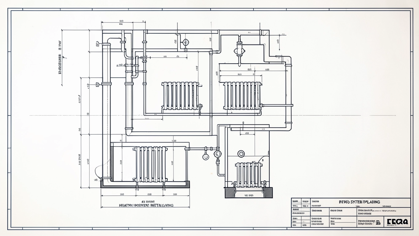
Rysunki i zestawienie elementów w projekcie
Rysunki wykonawcze to mapa montażu dla ekipy: rzuty kondygnacji z oznaczonymi grzejnikami, przebiegami przewodów, wysokościami montażu oraz miejscem rozdzielaczy i zaworów. Niezbędny jest także schemat hydrauliczny pokazujący obieg z kotłem, pompą, naczyniem wzbiorczym, zaworem bezpieczeństwa i odprowadzeniem kondensatu, a także rysunek techniczny kotłowni z wymiarami i strefami serwisowymi. W projekcie powinny znaleźć się również detale, takie jak sposób mocowania rozdzielacza, miejsce przewodów przez stropy i ściany oraz miejsca dopuszczenia do kanalizacji i wentylacji.
Zobacz także: Wymiana instalacji centralnego ogrzewania kosztorys
W zestawieniu elementów (bill of materials) umieszcza się szczegółowo liczbę i rodzaj komponentów: grzejniki — model, moc i ilość; rury — rodzaj i długości odcinków; armatura — typ i średnice zaworów; pompy i naczynia — parametry pracy; dodatkowe elementy — filtry, odpowietrzniki automatyczne, zawory antyskażeniowe. Taki wykaz ułatwia wycenę, logistykę i kontrolę jakości instalacji, a także skraca czas montażu, gdyż materiały są skompletowane zgodnie z listą.
Przygotowując rysunki warto zadbać o czytelność: używać standardowych symboli, legendy oraz tabelki z oznaczeniami, numerować obiegi i przydzielać im odpowiadające im zestawienia. Dobrze skonstruowany projekt pozwala na szybkie odnalezienie elementu w terenie, weryfikację poprawności montażu i przyspiesza odbiór techniczny — to realna oszczędność czasu i kosztów na etapie wykonania.
Sprawdź: Instalacja centralnego ogrzewania opis
Źródła energii i odnawialne rozwiązania w projekcie
Wybór źródła ciepła należy rozpatrywać nie tylko przez pryzmat ceny zakupu, ale i sezonowej efektywności, elastyczności pracy i kompatybilności z projektowanymi temperaturami zasilania. Opcje typowe dla domu 150 m² to: kocioł kondensacyjny gazowy (niższy koszt inwestycji, prostsza instalacja), gruntowa lub powietrzna pompa ciepła (wyższy koszt początkowy, znaczne oszczędności eksploatacyjne przy niskich temperaturach zasilania), oraz kolektory słoneczne wspomagające CWU lub obieg grzewczy w miesiącach przejściowych. W projekcie można zaplanować hybrydę: np. pompę ciepła jako źródło bazowe i kocioł gazowy jako dogrzewanie szczytowe.
Orientacyjne koszty instalacji dodatkowych źródeł: powietrzna pompa ciepła 6–8 kW z montażem 35 000–55 000 PLN, kolektory solarne 2–3 płyty z zasobnikiem 3 000–12 000 PLN zależnie od pojemności i technologii; te wartości wpływają znacznie na CAPEX, ale poprawnie zaprojektowane systemy odnawialne mogą obniżyć koszty paliwa o kilkadziesiąt procent w ciągu roku. W projekcie warto oszacować zużycie energii rocznie (przykład: zapotrzebowanie 9 kW × 2 000 h ≈ 18 000 kWh ciepła rocznie) i modelować scenariusze z różnymi źródłami, by policzyć realny czas zwrotu inwestycji.
Integracja odnawialnych rozwiązań wymaga uwzględnienia dodatkowych elementów w projekcie: buforów ciepła dla pomp gruntowych, odpowiednich wymienników i dodatkowych zaworów trójdrogowych, sterowania hybrydowego, a także miejsca montażu kolektorów i odpowiednich tras rur. Dokumentacja powinna zawierać schematy połączeń, parametry pracy przy różnych trybach (sezon, dogrzewanie, CWU) i instrukcje serwisowe, co umożliwi sprawne uruchomienie i optymalną eksploatację rozwiązań odnawialnych.
Powiązane tematy: Instalacja centralnego ogrzewania rodzaje
Dobór materiałów: rury, grzejniki, pompy, zawory
Materiały decydują o trwałości i kosztach eksploatacji instalacji. Najpopularniejsze rury to systemy wielowarstwowe (PEX/AL/PEX) i rury PEX w osłonie PE, ze względu na łatwość montażu i korzystny stosunek ceny do właściwości hydraulicznych; miedź pozostaje opcją trwałą, ale droższą. Przy projektowaniu instalacji warto przyjąć kryteria doboru średnic według obliczonych przepływów — w przykładzie główne magistrale 20 mm, rozdziały do grzejników 16 mm — przy zachowaniu prędkości przepływu nieprzekraczającej 0,6 m/s, co ogranicza hałas i straty ciśnienia. Grzejniki dobiera się według mocy danego modelu i specyfiki pomieszczeń; stalowe grzejniki płytowe są ekonomiczne, żeliwne dają większą bezwładność cieplną, konwektory zaś potrzebują innego podejścia projektowego.
Pompy obiegowe dobiera się na podstawie wymaganego przepływu i strat ciśnienia obiegu: w naszej symulacji przepływ ≈0,4 m³/h przy ΔT = 20°C i mocy 9 kW, co przekłada się na wybór pompy o wysokości hydraulicznej kilku metr i możliwością modulacji, by obniżać zużycie energii elektrycznej. Warto rozważyć pompy z silnikami ECM, które przy niższym zużyciu prądu zwracają się w czasie eksploatacji. Charakter armatury (zawory termostatyczne, zawory odcinające, zawory równoważące, filtry magnetyczne) i jakość połączeń wpływają na późniejszą niezawodność instalacji i łatwość regulacji.
W doborze zaworów i osprzętu należy uwzględnić możliwość ręcznego i automatycznego balansowania obiegów, zastosowanie zaworów antyskażeniowych i odpowiednich kompensatorów termicznych przy przejściach przez przegrody budowlane. Inwestycja w dobrą armaturę i rozdzielacze z pomiarami przepływu to element projektu, który szybko zwraca się poprzez prostszą regulację i mniejsze zużycie energii; dokument projektu powinien zawierać specyfikacje techniczne i wymagane nastawy fabryczne.
Sterowniki, automatyka i okablowanie w projekcie
Sterowanie decyduje o efektywności instalacji i komforcie użytkownika. Projekt instalacji powinien określać, czy system będzie zarządzany centralnie przez regulator pogodowy, czy też strefowo przez termostaty pokojowe i zawory strefowe; w nowoczesnych instalacjach stosuje się krzywe grzewcze, regulację nocną, adaptacyjne algorytmy oraz integrację z czujnikami temperatury zewnętrznej. Sterowniki muszą być dobrane do liczby stref i rodzaju urządzeń (sterowanie pompami, zaworami trójdrożnymi, pompą ciepła), a w dokumentacji konieczne jest podanie schematu okablowania, wymaganej liczby przewodów i punktów zasilania dla siłowników i czujników.
Okablowanie projektuje się z uwzględnieniem topologii: magistrala bus dla komunikacji zdalnej lub układ przewodowy typu gwiazda dla sygnałów prostych; przewody zasilające urządzenia powinny mieć zapas długości i zabezpieczenia zgodne z normami elektrycznymi. W projekcie należy wskazać miejsca montażu czujników temperatury (na osi pomieszczenia, z dala od przeciągów i promieniowania słonecznego), rodzaj czujników (NTC, Pt1000), oraz sposób prowadzenia kabli (korytka, peszle), by uniknąć przeszkód wykonawczych przy montażu.
Programowanie i uruchomienie automatyki powinno być częścią kontraktu wykonawczego: dokumentacja powinna zawierać schematy logiki działania, listę nastaw (krzywa grzewcza, histerezy), oraz procedury testowe i protokoły odbiorowe. Bez właściwej automatyki nawet dobrze wymiarowana instalacja nie osiągnie optymalnej efektywności, dlatego projekt musi dokładnie definiować wymagania i odpowiadające im interfejsy okablowania.
Koszty, instalacja i korzyści długoterminowe
Projekt to narzędzie kontroli kosztów: dobra dokumentacja redukuje ryzyko błędów i konieczności poprawek, a przemyślany dobór elementów wpływa na TCO (total cost of ownership). W przykładzie kosztorysowy suma około 31 240 PLN obejmuje kocioł, grzejniki, rury, pompę, armaturę i robociznę; przy rocznym zapotrzebowaniu na ciepło rzędu 18 000 kWh i sprawności kotła kondensacyjnego ~92% można oszacować roczne zużycie paliwa i koszty eksploatacji, które są kluczowe przy porównywaniu z inwestycją w pompę ciepła lub panele słoneczne. Warto pamiętać, że wyższy koszt inwestycyjny instalacji odnawialnej często przekłada się na niższe koszty użytkowania, a dzięki właściwemu projektowi można ten efekt zmaksymalizować.
Przy planowaniu budżetu projektu należy uwzględnić nie tylko ceny materiałów, ale i logistykę, dostępność komponentów oraz czas montażu — przeciętna instalacja dla domu 150 m² wymaga od kilku dni do 2–3 tygodni robocizny w zależności od zakresu prac i konieczności prac dodatkowych (np. adaptacja kotłowni). Dobre zestawienie elementów i precyzyjne rysunki zmniejszają ryzyko przerw i opóźnień, a przemyślana automatyka i właściwe ustawienia hydroukładu zmniejszają koszty eksploatacji przez wiele lat.
Inwestorom warto zaproponować symulację kosztów eksploatacyjnych przy różnych scenariuszach paliwowych oraz krótką kalkulację czasu zwrotu dla rozwiązań odnawialnych; takie dane umieszczone w projekcie pomagają podjąć świadomą decyzję i określić priorytety — komfort, minimalny koszt inwestycji czy maksymalne oszczędności w długim terminie. Projekt instalacji centralnego ogrzewania to zatem dokument strategiczny: dobrze wykonany, staje się narzędziem oszczędzania i gwarancją właściwej pracy systemu przez lata.
Instalacja centralnego ogrzewania projekt — Pytania i odpowiedzi
-
Dlaczego każdy budynek powinien mieć oddzielny, profesjonalny projekt instalacji CO, a nie tylko ogólny projekt budowlany?
Profesjonalny projekt CO uwzględnia specyfikę danego budynku, zapotrzebowanie na energię, dobrą lokalizację źródeł ciepła oraz parametry izolacyjności, co wpływa na efektywność, koszty eksploatacyjne i łatwość montażu. Bez szczegółowego projektu mogą wystąpić mniejsze lub większe straty ciepła, nieodpowiednia moc kotła i ryzyko kosztownych modyfikacji w przyszłości.
-
Co powinien zawierać projekt CO: moc cieplna, średnice rurociągów, rozmieszczenie grzejników i parametry automatyki?
Projekt powinien zawierać rzuty kondygnacji, rozmieszczenie grzejników, rozprowadzenie przewodów, parametry mocowe (moc cieplna), średnice rurociągów, nastawy automatycznej regulacji, zawory, odwodnienia i odpowietrzenie. W projekcie warto uwzględnić montaż sterowników (kable lub bezprzewodowo) oraz zaplanować właściwe okablowanie, aby zapewnić skuteczną automatykę i komfort użytkowania.
-
Jak wpływają na projekt obowiązujące wymogi prawne i normy (np. WT) dotyczące izolacyjności i zapotrzebowania na energię?
Wymogi prawne określają dopuszczalne parametry izolacyjności i zapotrzebowania na energię (U i EP), co determinuje dopuszczalne wartości projektowe i efektywność energetyczną systemu. Projekt musi być zgodny z tymi przepisami, aby zapewnić bezpieczeństwo, ekonomiczność i zgodność z przepisami.
-
Kto powinien montować sterowniki i automatykę oraz jak powinna wyglądać organizacja okablowania?
Montaż sterowników i automatyki powinien być przeprowadzony przez wykwalifikowanego instalatora. W projekcie warto z góry uwzględnić okablowanie (kable lub rozwiązania bezprzewodowe), tak aby instalacja była pewna, niezawodna i łatwa w serwisie. Nieprawidłowo dobrana lub zamontowana automatyka nie przyniesie korzyści.